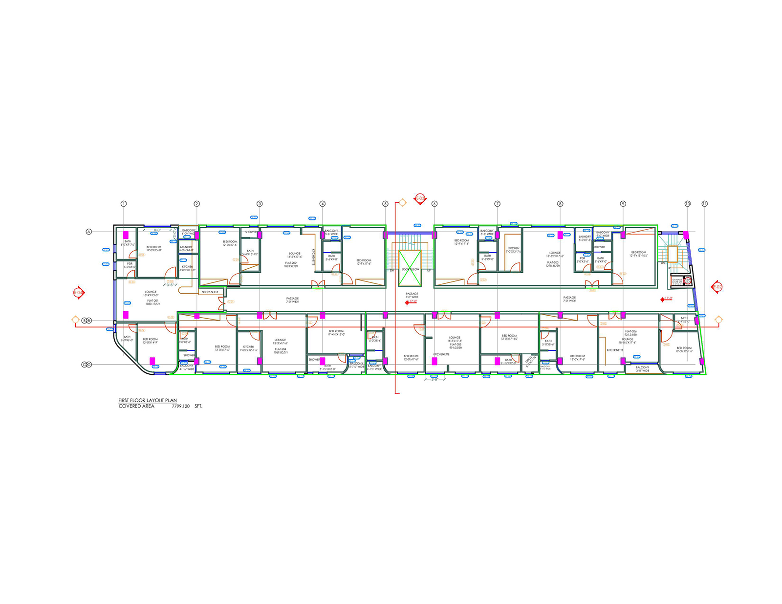
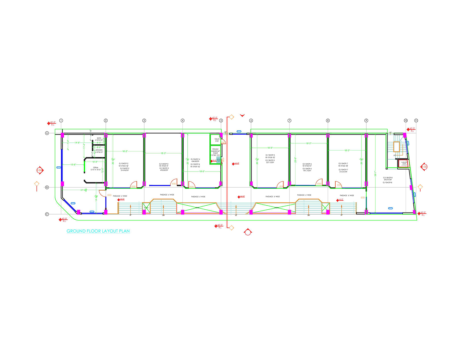
Chinnar Commercial

Project Location: Rahman Enclave

Area:  Sq. ft.

Services Offered: Architecture Design, Structure Design, Services Design including Plumbing, Electrical and HVAC/Mechanical, Interior Design